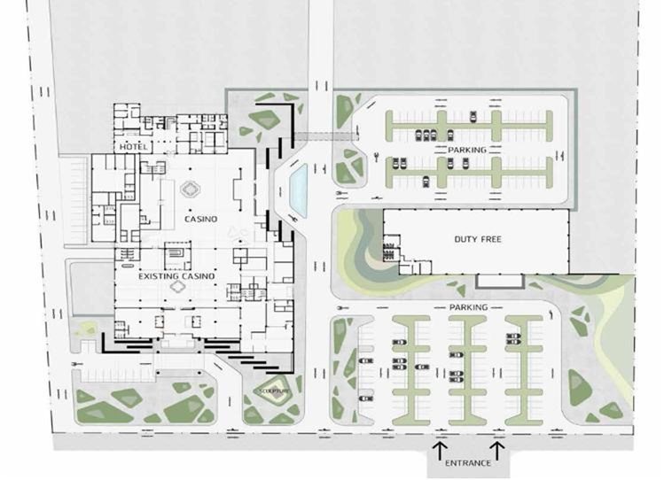
Thakhek Five-Star Hotel and Entertainment Complex
Energy Monitoring
Active Buying Customers
Description
The Thakhek Five-Star Hotel and Entertainment Complex is a proposed mixed-use development in Khammouane Province, initiated by Macau Legend Development Ltd. The project envisions a high-end tourism and hospitality complex near the Lao–Thai border, with hotel accommodations, entertainment venues, and a limited casino operation under government approval. Connected Consultant Sole Co., Ltd. was engaged to conduct a Land Use and Regulatory Compliance Analysis, particularly focusing on overlapping claims from prior developments and existing communities. The analysis covered zoning laws, SEZ governance frameworks, and socio-economic impacts on affected households. Recommendations included compensation planning, legal pathway structuring, and land consolidation options. Once resolved, the project is expected to enhance local tourism, create employment, and attract regional investment under Lao PDR’s Special Economic Zone strategy.
Photos
Location
The proposed project is located in Thakhek district, Khammouane at the existing SKKS Hotel and Casino closed to the border, Friendship bridge No. III.




